Tabellarische Erfassung der Lüftungszonen, Räume und Anlagenparameter
Schnellerfassungsassistent zur zeitsparenden Projektbearbeitung
Feststellung der Notwendigkeit einer lüftungstechnischen Maßnahme nach DIN 1946-6
Berechnung mehrerer Wohneinheiten innerhalb eines Projekts
Berechnung der notwendigen Luftvolumenströme für freie und mechanische Lüftungssysteme
Detaillierte Berechnung nach DIN 1946-6 für Wohngebäude inklusive Berücksichtigung der Volumenströme für innenliegende Bäder nach DIN 18017-3
Ausgabe der Ergebnisse in übersichtlichen Tabellen und Protokollen für Dokumentation, Nachweis und Förderanträge
Optionale Herstellerdaten zur direkten Anlagenauslegung (mit Pflege-/Nutzungsvertrag)
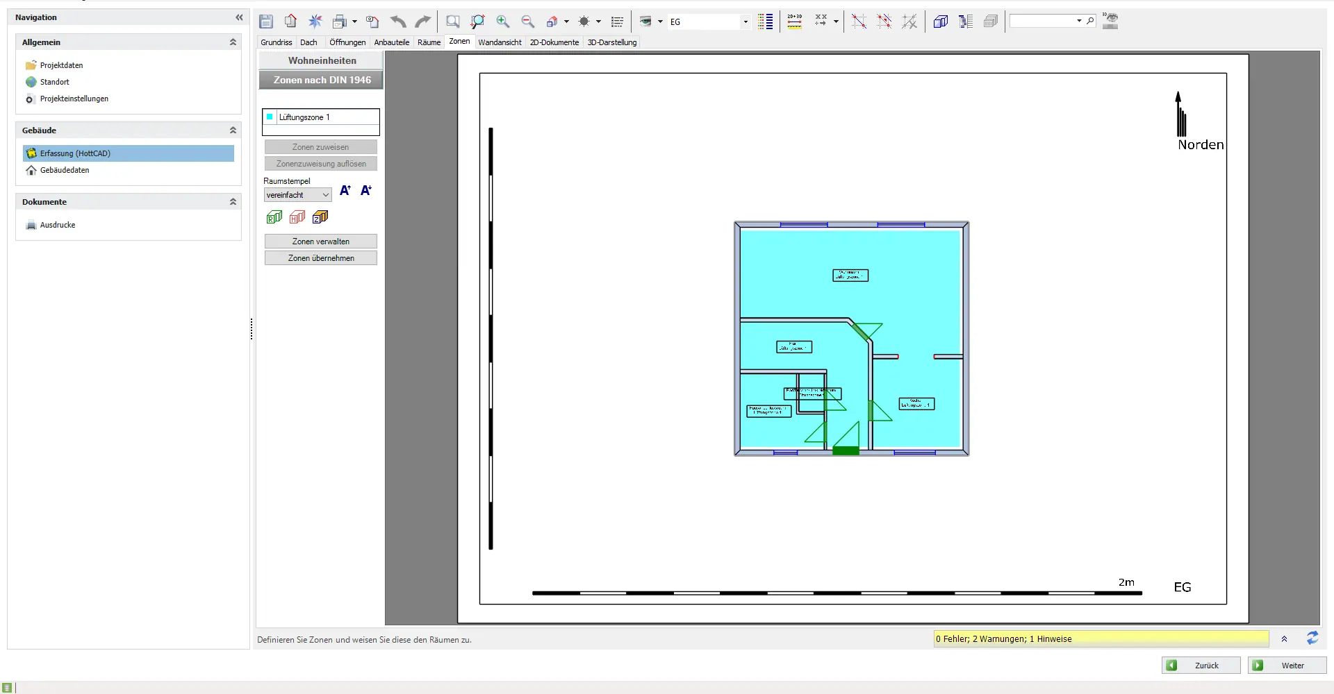
Das integrierte HottCAD ermöglicht eine präzise Gebäudeerfassung und direkte Verknüpfung der Lüftungsplanung mit dem Gebäudemodell.
Schnelle Erfassung mithilfe diverser Assistenten und intuitiver Bedienung
Erweiterung der Gebäudedaten um Materialeigenschaften, Raumdefinitionen und Zonenbildung
3D-Modellansicht für die visuelle Kontrolle des Gebäudes
Bidirektionale Verbindung zum Gebäudemodul mit tabellarischer Hüllflächenerfassung
Datenaustausch mit anderen Hottgenroth-Anwendungen – etwa GEG-Berater, ETU-Planer oder Optimus
Verlege- und Grundrissdarstellung für eine anschauliche Dokumentation
Normkonforme Planung nach DIN 1946-6 und DIN 18017-3
Automatische Prüfung, ob eine lüftungstechnische Maßnahme erforderlich ist
Schnelle Erfassung durch intelligente Assistenten
Mehrfamilienhaus-fähig – mehrere Wohneinheiten in einem Projekt
Grafische und tabellarische Ergebnisdarstellung
Inklusive 3D-Modell-Integration über HottCAD
Mit Optimus steht Ihnen eine praxisorientierte Software für den hydraulischen ...
699,00 €
zzgl. gesetzl. MwSt
Energetische Inspektion von Lüftungs- und Kälteanlagen nach GEG Abschnitt ...
499,00 €
Mit dem ETU-Planer Silber erhalten Sie eine leistungsstarke Komplettlösung ...
6999,00 €
Zusatzmodul zu den technischen Modulen aus den Bereichen Heizung/Klima/Sanitär ...
49,00 €
Bitte aktivieren Sie JavaScript in Ihrem Browser, um den vollen Funktionsumfang unserer Seite nutzen zu können